Horton, South Gloucestershire

3 Bedroom Cottage

£1,850 PCM

  • 3 bedroom
  • 2 bathroom
  • 2 reception

Key Features

  • Spacious cottage in desirable country location
  • Two reception rooms and conservatory
  • Kitchen/dining room with Rayburn stove
  • Three double bedrooms, two bathrooms
  • Separate office for home working
  • Double carport and off-street parking
  • EPC Rating E
  • Council Tax Band B (South Gloucestershire)

Description

DESCRIPTION

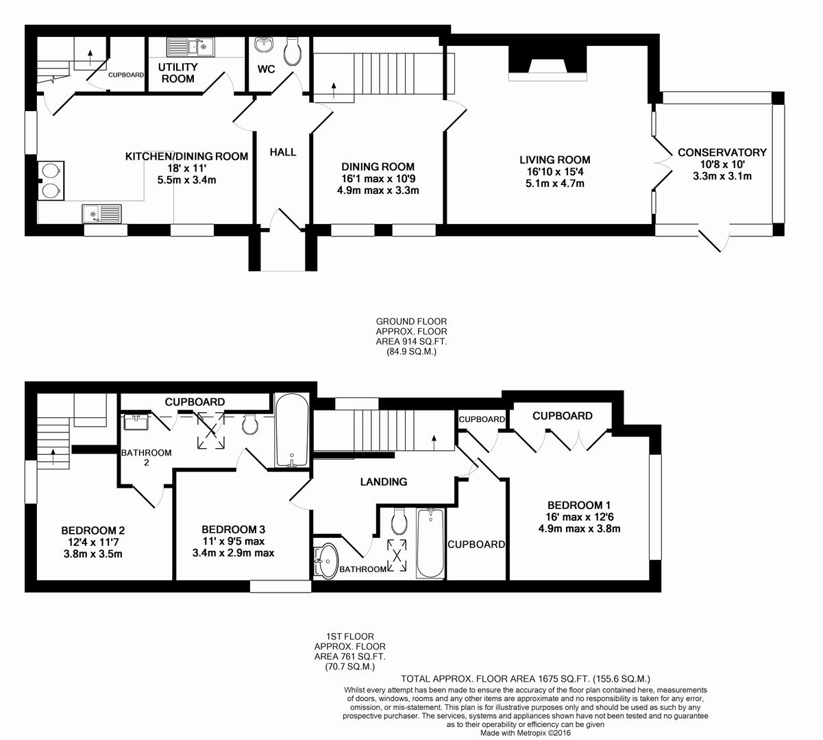
Tucked away down a quiet lane on a private estate at the bottom of Horton Hill, Mapleridge Cottage is a spacious three bedroom cottage in a stunning rural location. The front door opens into a hallway with a WC. To the left is the kitchen/dining room complete with fitted cupboards, a Rayburn stove and separate electric hob and oven. There is a utility room off the kitchen as well as a stairway leading to one of the three double bedrooms.
Turn right from the hall into a dining room which flows through to a large sitting room with a woodburning stove, and then a conservatory to the rear. The second stairway off the dining room leads up to two bedrooms, including the master bedroom which has stunning views. There are two bathrooms including a 'Jack and Jill' bathroom which links directly to two of the bedrooms. The upstairs also has various useful built-in storage space.
Externally, there are gardens to both the front and rear of the house including a large patio at the rear. There is also a double car port which also benefits from a self-contained office above which is ideal for home working.

SITUATION

The historical village of Horton lies at the foot of the Cotswold escarpment on the Little Avon River between the villages of Hawkesbury and Little Sodbury. The village is surrounded by rolling countryside and is perfect for country walks being just a quarter of a mile from the Cotswold Way and close to the Badminton Estate. Horton is well-served by its own well-regarded primary school and there is an active village hall which provides a hub for the community.
The nearby market town of Chipping Sodbury offers a broad range of shops and amenities for everyday needs including quality shops, restaurants, cafes and pubs, as well as a Waitrose supermarket. There are also a number of popular schools catering for all ages.
Located just off the A46, Horton is only 4.5 miles to Junction 18 of the M4, providing quick and easy access to Bath and Bristol. The nearby Yate train station (approx. 3 miles away) also provides good transport links to Bristol, Cheltenham and mainline services.


Location


Floorplan

Floorplan

EPC

EPC for Horton, South Gloucestershire

Victoria Allman Lettings

Orchard House, Cherry Orchard Lane,
Luckington, Wiltshire, SN14 6NX