Upton, Tetbury

2 Bedroom Barn Conversion

£1,700 PCM

  • 2 bedroom
  • 2 bathroom
  • 2 reception

Key Features

  • Character barn conversion on a private country estate
  • Peaceful picturesque setting
  • Two double bedrooms with ensuite bathrooms
  • Flexible living and dining areas
  • Separate utility room or home office
  • Private lawned garden and patio
  • Off-street parking
  • EPC rating D
  • Council Tax Band D - £2,180 pa

Description

DESCRIPTION

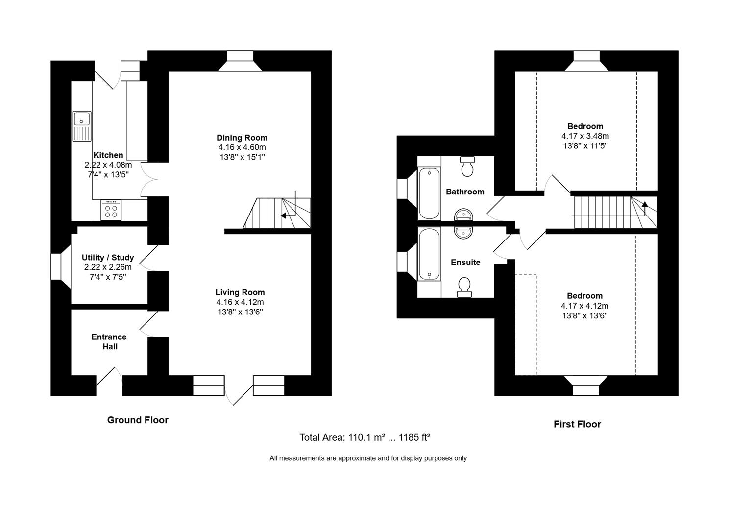
Tucked away down a quiet lane on a private country estate, Courtyard Cottage is a sympathetically converted former stable situated within an idyllic private estate just outside Tetbury. With exposed beams, stonework and generous natural light throughout, this is a characterful yet practical home providing an ideal country base. The ground floor is thoughtfully laid out with the entrance hall leading to a large living and dining room. There is a well-equipped galley kitchen complete with integrated appliances and stylish units with lots of storage. A separate utility room houses laundry appliances and can also be used as a study for home working. Upstairs there are two good size double bedrooms with exposed beams and stonework, and ensuite bathrooms. Outside there is a private lawned garden designed for easy upkeep, and a patio area perfect for outdoor dining or relaxing in the quiet of the countryside.

SITUATION

The pretty hamlet of Tetbury Upton is situated just a over half a mile from Tetbury and comprises a handful of beautiful country houses and cottages. The hamlet is surrounded by rolling Cotswold countryside and is perfect for country walks. The area is well known for its royal connections, with King Charles' Highgrove House and Princess Anne's Gatcombe House both close by, and the beautiful Westonbirt Arboretum also less than 10 minutes drive away. Tetbury town centre offers a broad range of shops and amenities for everyday needs including a large supermarket, hospital, and a post office. There are also a number of quality boutiques, delicatessans and antique shops, as well as some excellent restaurants and cafes which contribute to a busy social scene. Conveniently located less than half an hour from both the M4 and M5 motorways, Tetbury Upton is within easy reach of Cirencester, Cheltenham, Bath, Bristol and Swindon. There is good access to nearby Kemble Railway Station which provides regular fast services to London and other regional centres.


Location


Floorplan

Floorplan

EPC

EPC for Upton, Tetbury

Victoria Allman Lettings

Orchard House, Cherry Orchard Lane,
Luckington, Wiltshire, SN14 6NX